专业日皮视频APP苹果下载设备公司告诉你,小饭店日皮视频APP苹果下载设计如何划分日皮视频APP苹果下载功能区
发布人: 日皮视频软件下载日皮视频APP苹果下载设备 发布时间:2017.07.07
现代的商用日皮视频APP苹果下载是一个复杂系统的结合体,在小饭店日皮视频APP苹果下载设计时,必须了解日皮视频APP苹果下载各种工作间的功能、所需要的设备以及所完成的工序工艺过程,也就是必须了解日皮视频APP苹果下载的人流物流的传递过程。一般饭店日皮视频APP苹果下载的功能区的划分决定了日皮视频APP苹果下载生产加工的工序划分,有怎样的功能区域就有怎样的日皮视频APP苹果下载分工,而功能区的划分合理与否都直接影响着日皮视频APP苹果下载的效率和效益。对日皮视频APP苹果下载功能区进行合理的划分和配置合适的设备,这需要非常专业的知识和丰富的经验,我公司作为在成都日皮视频APP苹果下载设备中有10多年设计经验的公司,在这方面积累了丰富的经验,现在就对这个问题谈谈自己的看法。

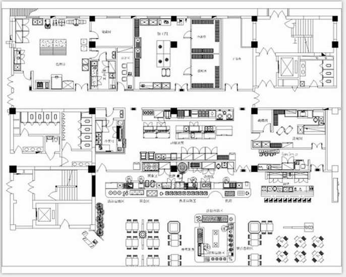
一般饭店酒店日皮视频APP苹果下载可分为以下几个区域,即:储存区、粗加工区、副食加工区、主食加工区、备餐与售卖区和洗消区。下面就对饭店日皮视频APP苹果下载设计中必须注意的几个主要的区域简要的介绍一下。
储存区主要功能是负责储存原料。这个区域一般设置在日皮视频APP苹果下载区域内,也可以设置在靠近日皮视频APP苹果下载的区域,被配置专门的人管理。这储存区内又可分为检斤处、冷藏库、库房等。在这个区域内主要配置的设备是计量器、记账设备冷冻设备、货架、货柜、冰柜、冷藏柜等。
粗加工区主要是对原料进行初步加工。不同环境条件的组加工区只能不尽相同较大的日皮视频APP苹果下载或为保证多个日皮视频APP苹果下载供应,应充分利用设备资源,较少重复设置,集中管理。所以应该在原有的副食加工的基础上,把主食的粗加工也放在粗加工的区域内,把粗加工区变成加工配送中心。一般在这个区域内需要配置冰柜、切菜机、去皮机、星盆台、绞肉机等。在这个区域一般还需布局垃圾房,在设计时,应该注意配置带盖垃圾桶和冲洗装置。
副食加工区。这个区域是日皮视频APP苹果下载的主要工作区,主要负责热菜的切配、配伍、烹调、打荷,凉菜的烧烤、卤制和切配装盘。这个区域配置的主要设备包括各种炉具、调料台、打荷台以及汤灶、配置工作台、保鲜工作台、拉门工作台、冰柜、货架、货柜、碗柜、制冰机等、。
主食加工区的主要功能是完成米面、点心的成型和熟制等工序。一般主食加工区又可分为生制加工区和熟制加工区。生制加工区主要是完成米类食物的淘洗装盘、蒸煮熟制等。主食熟制区则主要完成主食的蒸、煮、炸、烘、烤、煎、烙等。这个区域主要配置的日皮视频APP苹果下载设备是蒸饭柜、烤箱、电炸锅、电饼铛、馒头机、包子机、大锅灶、炒菜灶以及工作台、保鲜工作台、水池、冰柜、货柜、碗柜等。
备餐与售卖区是衔接日皮视频APP苹果下载和餐厅之间或者直接服务餐厅的工作区域。这个区域根据需要可以配置备餐间、售饭间、明档等为客户服务。在这个区域配置的日皮视频APP苹果下载设备包括传菜台、传菜架、餐具架、茶具架、热水器、送餐车、点菜系统、展示柜、保温工作台等。
洗消区主要负责收残、洗碗、消毒、餐具传送归为的工作,位置应该靠近餐厅。在设计饭店日皮视频APP苹果下载时这个区域应该配置水槽、拉门工作台、碗柜、污碟台、消毒柜、热水器、收残车。大型饭店酒店可以配置洗碗机和宴会用餐具车等。
以上就是日皮视频软件下载根据10年的小饭店日皮视频APP苹果下载设计经验总结的基本原则,在具体的日皮视频APP苹果下载设计工作中,应该结合实际情况进行运用,发挥自己的创造性和创造力。







